バドミントンはスピードと戦略が求められる魅力的なスポーツです。私たちはこのゲームを楽しむために、まずバドミントンのルールとコートの基本を理解することが重要です。コートのサイズやネットの高さ、さらには得点ルールに至るまで、知識があればプレイがさらに楽しくなります。
バドミントン ルール コートの基本
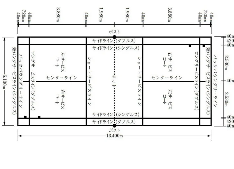
バドミントンコートのサイズや構成は、大会やプレイスタイルによって異なる。公式のコートは、長さ13.4メートル、幅6.1メートル(ダブルスの場合)となっている。また、シングルス用の幅は5.18メートルである。これにより、プレイする際の空間を最適化できる。
コートの両端には、サービスラインがある。サービスラインは、ネットから1.98メートルの距離に配置され、サーブを行う際の重要なガイドラインとなる。コートの中央にはネットが設置されており、ネットの高さは1.55メートルである。
さらに、コートの両側には境界線が引かれており、これらのラインはボールがアウトかインかを判定するのに役立つ。プレイヤーは、境界線を越えた地点にシャトルが落ちた場合、それをアウトとみなす。
また、 コートの周囲には十分なスペースが必要。各辺に最低1メートルの余裕を持たせることで、選手が自由に動き回れる環境を提供する。競技中は、慎重にこれらのルールを遵守することが、勝利へのカギとなる。
コートの寸法
バドミントンコートの寸法は、プレイするための基本的なルールを理解する上で非常に重要です。公式のコートは、長さ13.4メートルと幅6.1メートル(ダブルス用)で構成されています。また、シングルス用の場合は幅が5.18メートルに変更されます。以下に、シングルスコートとダブルスコートの寸法について詳述します。
シングルスコート
シングルスコートでは、プレイヤーが競い合うためのスペースが設定されています。具体的な寸法は次の通りです:
- コートの長さ: 13.4メートル
- コートの幅: 5.18メートル
- サービスラインからネットまでの距離: 1.98メートル
プレイ中、境界線を越えないことが求められ、プレイヤーはこの空間を有効に活用する必要があります。
ダブルスコート
ダブルスコートでは、スペースが広がります。ダブルス用のコートは、次のように設計されています:
- コートの長さ: 13.4メートル
- コートの幅: 6.1メートル
- サービスラインからネットまでの距離: 1.98メートル
この幅広のスペースにより、チームワークが強化され、戦略的なプレイが可能になります。プレイヤーは効率よく位置取りを行い、相手に挑む必要があります。
バドミントンのルール
バドミントンでは、明確なルールがゲームを円滑に進行させるために重要です。これらのルールを理解することで、プレイヤーは競技の楽しさを最大限に引き出せます。
サーブのルール
サーブはゲームの開始を意味し、エースを獲得するチャンスでもあります。サーブを行う際、サーバーはシャトルを腰の高さで打たなければなりません。サーブを打つ側は、サービスエリア内に足を置かず、相手側は受けたサービスを反撃する準備を整えます。また、サーブがネットにかかった場合、再度サーブをやり直す必要があります。正確なサーブを心がけることがポイント獲得の鍵となります。
コートでの注意事項
コートの使用に際して、ルールやマナーを遵守することが重要です。適切な行動が、試合をより楽しく、スムーズに進行させます。
選手の行動規範
選手は、以下の行動規範を遵守する必要があります。
- 試合中は相手選手を尊重する。 競技精神を持ち、挑戦を楽しむ姿勢を大切にします。
- 自分のプレースタイルに従う。 自分の強みを生かし、プレイすることで真剣さを示します。
- ルールを理解し遵守する。 サーブや得点方法を明確に理解して、試合を進めます。
- マナーを守る。 コート上での礼儀を保ちながら、友好な雰囲気をつくります。
選手同士の敬意が、ゲームの質を高め、より良い体験につながります。
審判の役割
審判には、試合の公平性を保つ重要な役割があります。
- ルールの執行を行う。 審判は、すべてのルールが正しく適用されているかを確認します。
- 得点を記録する。 正確なポイントを記録し、試合を進行させる役割を果たします。
- 選手に指示を与える。 必要に応じて選手に注意を促し、フォールトやペナルティを通知します。
結論
バドミントンを楽しむためにはルールやコートの特性を理解することが不可欠です。私たちが正確なサーブや位置取りを意識することでゲームの質が向上しより楽しめるでしょう。選手同士の敬意やルールの遵守が試合をスムーズに進行させる要素となります。
またバドミントンは単なるスポーツではなくチームワークや戦略を学ぶ場でもあります。これらの要素をしっかりと把握し実践することで私たちのプレイが一層充実したものになるはずです。バドミントンを通じて新たな楽しみや経験を見つけていきましょう。
